论热度指数,格调隐翠轩无疑是高温红盘。
自漂浮美术馆惊艳亮相后,全城侧目。
买房人以及业内,都发自内心的感叹“不愧是格调,总能给出意外惊喜”。
但不乏有人对格调隐翠轩的认知,略有偏差。
它并非普通的“单盘”。
所属的西营门城市更新项目总体量高达151.8万方,是“一艘航母”。
仅新建住宅面积,就27万方。
妥妥的超级大盘,不是一个点,而是一个面。
2023年至今,天津出让的纯住宅地块建面基本在6-15万方的水平。
格调隐翠轩,算的上是近两年天津体量最大的新盘了。
大盘的优势,非普通小盘可比拟的。
❶ 全域开发的思维。
毕竟一期后还有二期、三期,需要持续高水平输出,才能形成闭环。
❷ 楼市地位的鲜明性。
大盘就意味着拥簇者众多,楼市存在感强。
未来作为二手房依然是标杆领军楼盘。
❸ 生活配套的高浓度。
5万方的住宅可能都不需要额外补充配套,10万方需要配个公园、小商业。
面对27万方的住宅,业主体验到的是更丰富的配套。
西营门板块,不仅是津城体量最大,也是投入最高的城市更新。
总投资117亿,涉及23个老旧小区的改造,惠及约4.5万居民。
	
西营门片区鸟瞰图
不同于一般楼盘先卖房后完善配套的模式,西营门城市更新配套先行,与住宅同步开发。
目前,社区的提升改造有条不紊的进行,界面正逐步换新颜。
板块内规划有8.6万方的商业,最近距离地铁站仅200米。
未来将形成地标型商圈,聚集人气,补充高级烟火气。
长江道以北,将配建中营小学,与南开中学组成九年一贯制学校。
另外,精神配套也蓝图之中。
3.5万方的体育公园正在筹备。
格调率先落地并投入使用了1.7万方的漂浮美术馆,完全颠覆传统共享空间的印象。
	
格调隐翠轩漂浮美术馆实景图
	
格调隐翠轩漂浮美术馆实景图
对城市来讲,它是“圣殿级”的打卡地。
提升城市界面与板块气质,赋予艺术文艺气息。
对板块内居民来讲,它不仅是一座艺术馆,更是超高级的“社区中心”。
随时可以散步、闲聊、观赏、遛娃……
西营门更长远的配置,是产城融合的“发动机”。
总体规划20万平方米的产业园区,分为东西2个区,承接天开园孵化功能。
东区已全部动工,规划以塔楼、厂房、下沉广场为三个地标,打造未来感的展馆、科技馆,实现技术展示、产品展示功能。
西营门汇聚了高端产业集群,大量优质资源将奔赴而来。
	
6号地产业园区效果图
超级大盘,总是自带光环。
自从“引爆城市更新”后,铺在西营门板块上的高能节点,释放出凶猛的战斗力。
在板块翻新的进程中,这片“老底子”市中心,又不断焕发灼灼生机。
大盘所享受的城市资源,足以填充城市感和居住气息。
前脚还置身在烟火气的街头巷尾,下一秒就切换到了国际化的艺术都市。
我们可以总结出,格调隐翠轩作为市区罕见大盘,有何优势?
全域价值规划、城市界面提升、配套场景高浓度。
正处在猛烈上升期的板块,当然会聚焦更多人的目光。
如果遇上好的产品力,那必然是“双响炮”。
这也是为什么选择格调作为住宅板块承接的底层逻辑。
对于西营门城市更新来说,有了格调的进驻,又多了一层价值光环。
由头部房企主导的高品质住宅聚集区,在城市中更有竞争力。
关于格调产品的“不同寻常”可以讲上很多集。
但尊人重土、精耕细作和长期主义这几个特性,是贯穿在所有楼盘身上的。
细节精益求精,不惜大量花费时间慢慢沉淀。
最简单的例子,格调隐翠轩的样板间经过多轮整改、提升,才开放于众。
而并非像其它房企“快赶工—快开盘”。
格调相信时间也是一种投资,用心投注下去的时间成本,最终都会在产品里面体现出来。
用格调的话来说,“每一个项目都是城市限定版”。
这些年,格调不错过“上升板块”。
领先的产品力有给板块镀金的能力,通过品质楼盘的筛选、聚集效应,让板块在新房市场上迈出重要一步,吸引更高圈层的居民,从而给板块镀金。
从广开、华苑西……到开发区……现在到了西营门,也是一样。
品牌的美誉度、领先的产品力、板块的镀金能力,让格调隐翠轩未开先火。
已经被超过1000组改善家庭“提前锁定”。
	
行情冷暖,对于格调来说没有太大区别,它更习惯用创新去打磨产品。
面对如此重要的板块开发,当然要“对得起”城市进程。
格调把迭代后的“弹跳力”落到了西营门板块。
❶ 高辨识度的金边立面
美得过目不忘,是格调隐翠轩给人的第一印象。
冲击力来自光影雕刻、流畅线条、高级材质的外立面,成为许多人的“白月光”。
源于蒙德里安格子画,以及劳斯莱斯金腰线的灵感,搭配造价不菲的铝板、不锈钢,让美学地标具有极强的高辨识度。
	
格调隐翠轩效果图
窗墙比达到了惊人的1/6,远超于大多数1/3的水平。
用料的扎实度,必然反馈出审美表达。
格调隐翠轩南向立面铝板与玻璃的占比极高。
洋房接近100%,小高层接近95%,高层也高达85%。
阳光照射下,轻盈灵动又熠熠生辉。
❷ 创新力爆表的开敞式阳台。
作为市区数一数二可配建开敞阳台的高端住宅,格调隐翠轩的室外阳台进深最大可达1.95米。
从尺度来说,已经符合住建部对第四代住宅的规范要求。
从居住体验来说,的确正在向第四代住宅过渡。
	
格调隐翠轩效果图
	
格调隐翠轩效果图
据了解,天津对于开敞式阳台审批收紧,后续很难再复刻。
格调隐翠轩的“空中花园”、亲近自然的生活方式,或许成为绝版。
更“实惠”的是,凭借开敞式阳台以及室内可拓展空间,格调隐翠轩的出房率达到天津顶峰。
高层将近80%,小高层在85%以上,洋房更是达到了惊人的93%,“有趣又有惠”。
❸ 超五星级酒店式归家大堂
虽说归家大堂已成为改善标配,但格调隐翠轩的大堂尺度与精装水平,依然楼市罕见。
奢华感十足的大堂,面展足有66.8米,可以一字排开36辆Model3。
内部挑高约14米,天津在售新盘的最高水平。
选择爱马仕橙与普拉达绿为主色,按照超五星级的华尔道夫酒店大堂的装修风格来打造。
内装、景观、地下车马厅、地下车库入口均对标高奢酒店标准,相比于以往格调的社区,又精进了,卷出超强的封面感。
❹ 精工奢侈的“隐蔽配置”。
买房人不敏感的隐蔽点,房企往往都忽略。
格调一贯的风格是——卖的不是房,卖的是家,像给自己家盖房子一样。
表面看不到的地方,也要匹配好设计、用好料。
为了最大享受室内空间,格调隐翠轩匹配了超越标准的层高。
高层竟然能达到3米,小高层约3.1米,洋房更是高达3.2米,应该是全市唯一了。
另外,豪宅标配的同层排水,也被运用到了格调隐翠轩。
这些配置,都需要“重金砸入”,但带给业主是完全升级的居住体验。
❺ 独一无二的精装风格
区别于市面上的“大众脸精装”,格调拒绝采用现代风,而是输出了“自成一派”的风格。
融合了法式、中古、南洋等多重精装元素,营造出浪漫的复古情调。
	
格调隐翠轩约94平米样板间实景
	
格调隐翠轩约94平米样板间实景
	
格调隐翠轩约94平米样板间实景
每天相处时间最长的户内精装,才是最影响居住品质的要素。
选择《情迷法兰西》的优雅轻法式、《繁花》的现代新海派,还是《了不起的麦瑟尔夫人》的轻奢中古风,业主都能从心所欲。
这也是天津楼市第一次卷到了装修风格!
❻ 适配的户型空间。
天津的户型设计,正在从极值回归均值。
格调是一个典型的领先者,户型设计从实用出发,不追求噱头。
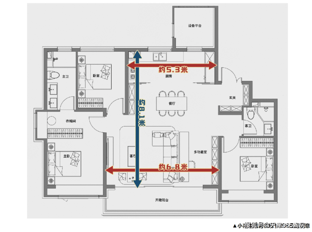
约143平米小高层目前关注度最高,完全可以作为“豪宅平替”。
	
整体开间约13.6米,客厅开间约6.8米,尺度感十足。
但也并未压缩进深,除去阳台,餐客厨依然能保持约8.1米的进深。
同时,厨房开间达到惊人的约5.3米,在同级别户型里已经创下记录。
餐厅与厨房同宽,形成约17平米的餐厨空间。
如果将客厅与餐厨融合,就获得一个面积约45平米的巨大家庭公共活动空间。
	
格调隐翠轩约143平米样板间实景
	
格调隐翠轩约143平米样板间实景
多样化的生活场景,因此而生。
独立玄关、主卧套间、女王化妆间、北向可拓展家政间……
真正实现大宅体验,可媲美市面上800万以上的豪宅。
6月底格调隐翠轩即将首开,引爆力已经一浪高过一浪。
当然,无论走到哪里,“格调造”都能化身为流量担当。
板块和房企向来都是相互助力的。
有格调的产品引领,接下来会有更多人聚集到这里,让板块爆发出更强的活力。
免责声明:本页面旨在为广大用户提供更多信息的无偿服务;不声明或保证所提供信息的准确性和完整性。本站内所有内容亦不表明本网站之观点或意见,仅供参考和借鉴,购房者在购房时仍需慎重考虑。购房者参考本站信息,进行房屋交易所造成的任何后果与本网站无关,当政府司法机关依照法定程序要求本网站披露个人资料时,我们将根据执法单位之要求或为公共安全之目的提供个人资料。在此情况下之任何披露,本网站均得免责。本页面所提到房屋面积如无特别标示,均指建筑面积。 注:本站所有信息未经许可,不得转载,复制,抓取等,如有违者必追究法律责任。如有异议可投诉至:Email:133 46734 45@qq.com