最近,19号线二期的线路一体化规划方案公示了,其中北延主线为牡丹园站至昌平生命科学园南站,并延伸至生命谷站;北延支线为上清桥南站至清河站;南延为新宫站至大兴海子角站,串联丰台区槐新组团、大兴区西红门镇东区、大兴经济开发区、大兴新城团河组团、大兴新城东组团海子角地区。

这其中,西红门板块因其一系列利好的规划成为南城热门置业板块,今天就来聊聊板块内的待售新房——壹品兴创·御璟星城·元启。
御璟星城元启位于京开高速和南五环交叉口东北方向,所属板块是成片规划,集中开发的区域,有多宗住宅、教育等用地规划。随着皇城根小学分校、北京四中分校等教育资源的规划落地,以及19号线西红门东地铁站的推进(尚未开通),西红门东区域的配套设施日趋完善,生活便捷性显著增强。

区位图
当然,西红门板块本身也有着成熟的商业,比如大家熟知的宜家、荟聚等;医疗资源方面,广安门医院南院区,北京大学第一医院大兴院区,大兴区人民医院等可以满足日常的就医需求。
接下来重点说下项目,壹品兴创·御璟星城·元启共规划20栋楼,4-15层,指导价为6.6万元/m²,户型为80-88-99-102-110-111-112-127-142-168平三居四居,户型图刚刚公布,一共12个户型,从刚需到改善全覆盖,选择多样。

效果图
接下来选几个有代表性的户型图解析一下看看:

解析:88平三居双卫设计,客厅和主卧朝南,且均带飘窗,主卧套房设计,私密性好;客厅面宽3.6米,可以保证室内良好的采光;客卫干湿分离,北向两个卧室,多功能室可以根据需求变更功能,比如可以当做书房、琴房等。这户型属于功能性三居,适合刚需家庭。

解析:110平宽敞三居,这户型亮点在客厅,设计成270度转角客厅,客厅面宽达4.6米,在这个面积段来说这个面宽很优秀了,再加上转角设计,可以想象到室内采光该有多好。主卧套房设计,南向面宽4米,十分宽敞,住着很舒服。北向卧室和多功能室相比88平的也更为宽敞。整体户型比较方正,设计合理,适合刚改家庭。

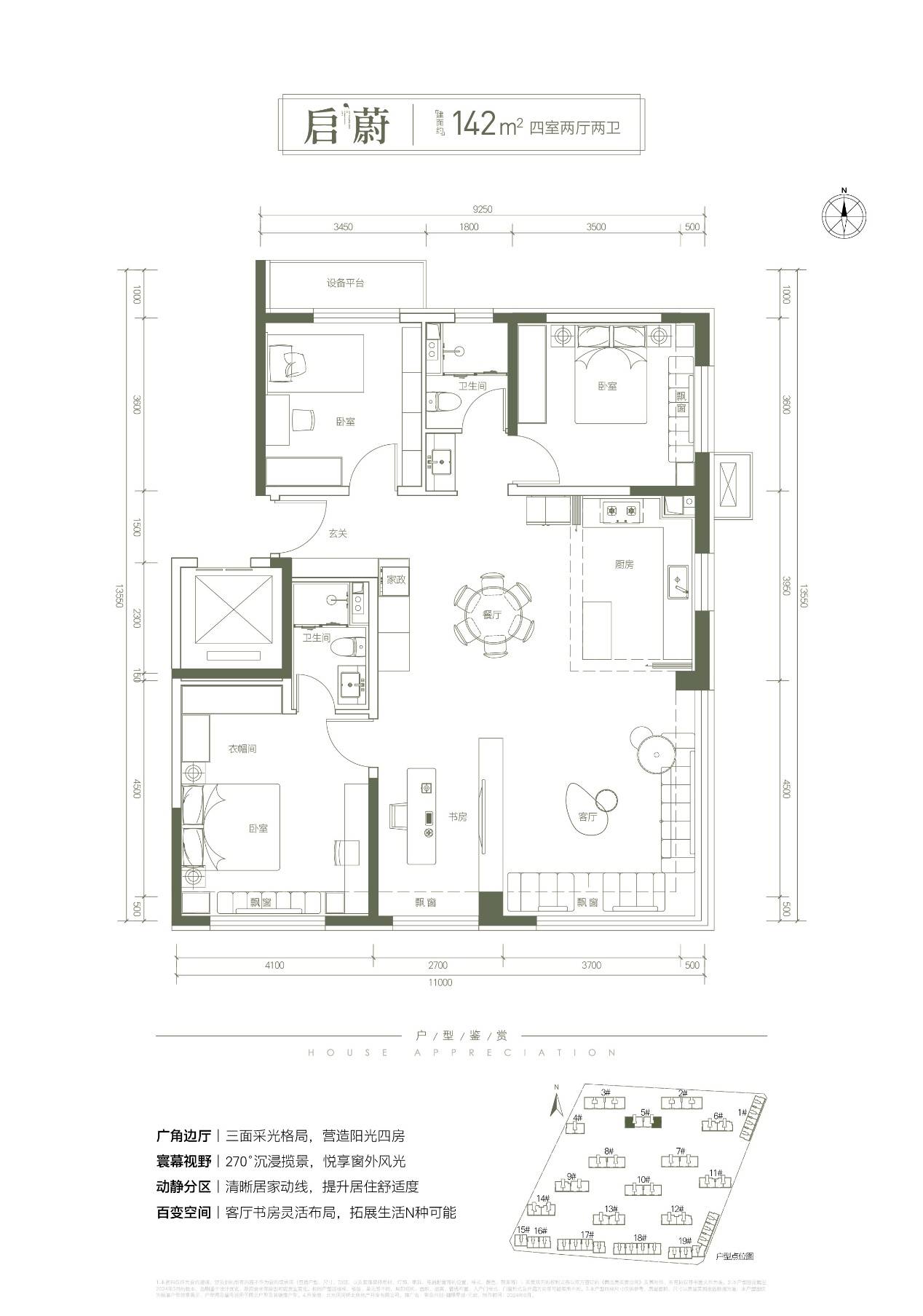
解析:142平改善四居,南向整体面宽11米,270度转角客厅设计,南向客厅、书房、卧室均带飘窗,客厅书房那里非实线部分可以根据需求打通,灵活布局。餐厅挨着厨房,餐厅的位置也更为宽敞。客卫是明卫,干湿分离。这户型方方正正,浪费面积小,适合改善家庭居住。
总结
近年来,西红门板块愈发受到购房者认可,教育、商业、交通等配套逐渐完善。御璟星城·元启可以认为是御璟星城的二期,汲取御璟星城备受追捧产品基因,外立面、园林、产品全面升级的迭代新作,指导价6.6万/平,目前尚未开盘,产品选择多样,想在南城置业的刚需 刚改、改善朋友可以关注一下。
免责声明:本页面旨在为广大用户提供更多信息的无偿服务;不声明或保证所提供信息的准确性和完整性。本站内所有内容亦不表明本网站之观点或意见,仅供参考和借鉴,购房者在购房时仍需慎重考虑。购房者参考本站信息,进行房屋交易所造成的任何后果与本网站无关,当政府司法机关依照法定程序要求本网站披露个人资料时,我们将根据执法单位之要求或为公共安全之目的提供个人资料。在此情况下之任何披露,本网站均得免责。本页面所提到房屋面积如无特别标示,均指建筑面积。 注:本站所有信息未经许可,不得转载,复制,抓取等,如有违者必追究法律责任。如有异议可投诉至:Email:133 46734 45@qq.com