毛坯限价19000元/㎡
石狮又一纯新盘入市
位于金曾片区的
「源昌福狮院」
将打造石狮首个「第四代住宅」项目
规划户型建面约128-220㎡
最新效果图曝光
关于项目
2024年4月18日,石狮产投以底价5.6亿元竞得位于石狮金曾片区的2023S-34号地块,总建面约18.5万㎡,毛坯限价19000元/㎡,可试点建设第四代住宅。
该项目将由源昌&产投联袂打造,匠筑石狮首座第四代住宅一福狮源昌院,开启石狮新一代人居体验。



项目规划建面约128-220㎡空中别院,四房起步,超6米挑高双庭院,让空中花园、空中四合院,不再是别墅的专属,真正实现层层有花园,户户有庭院的居住理想。


户型规划
日前,泉州公共资源交易信息网发布《金曾片区改造项目股权合作、建设及运营一体化项目施工监理》,项目户型设计方案过程稿曝光。

户型:128㎡
▼


户型:中间套146㎡,边套163㎡
▼




户型:180㎡
▼




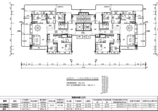
户型:182㎡
▼




户型:220㎡
▼




项目区位
源昌福狮院地处石狮行政区域核心地带,位于湖滨街道金曾社区。作为石狮一直以来的政治、经济、文化、产业中心,无论城市如何变迁,市府板块的地位始终无人能撼动。
这里汇聚串联城央高配资源:公积金中心、八七路、子芳路、步行街、泰禾广场、实验三小(曾坑校区)、实验二小、石狮一中、龟湖公园、风炉山公园、市妇幼保健医院等,配套成熟且完善。
根据规划,这里未来将建设高品质住宅区,结合曾坑杨孙西文化馆“四端堂”为代表的古厝群,形成集文化休闲、民俗风情、商业购物、美食旅游的商贸聚集区,打造高端市政府南大门、城市会客厅。
